1292 Glancaster Road

Ancaster

Property Preview

Virtual Tour

Photo Gallery

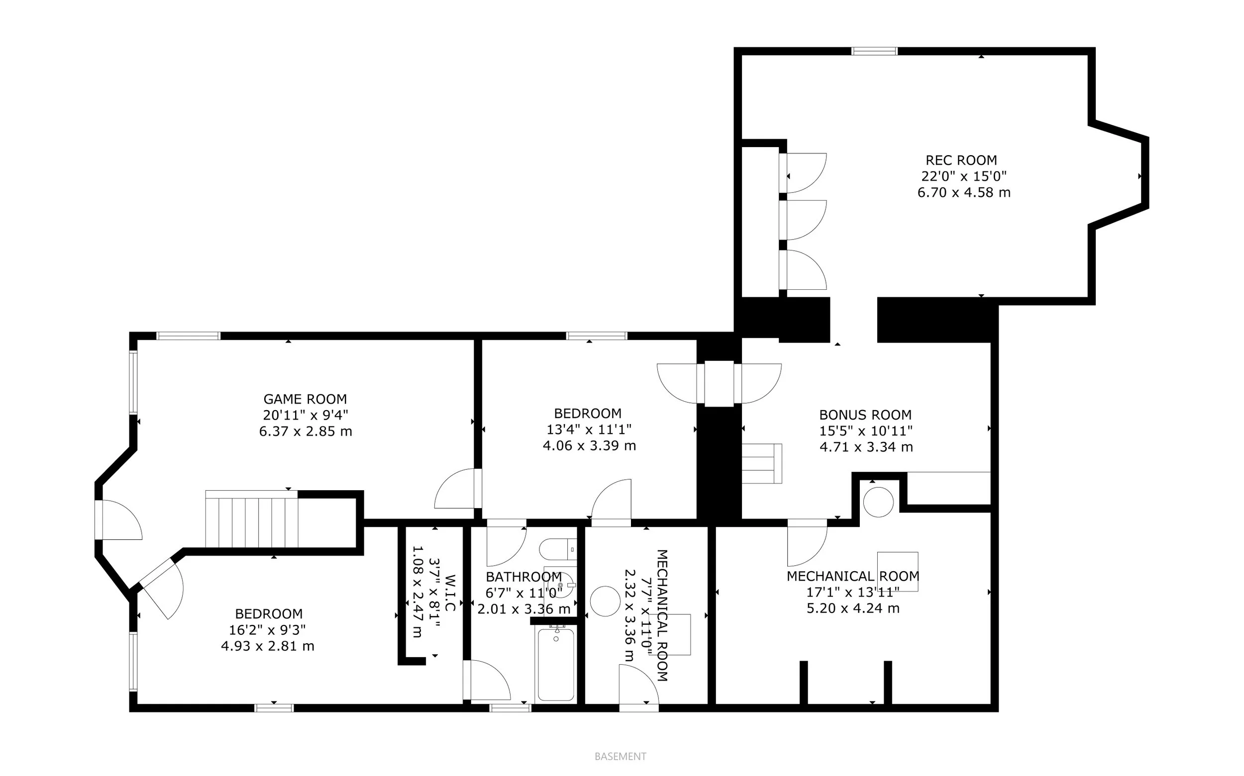
Floor Plans

Location