108 Cleghorn Drive

Binbrook

Property Preview

Virtual Tour

Photo Gallery

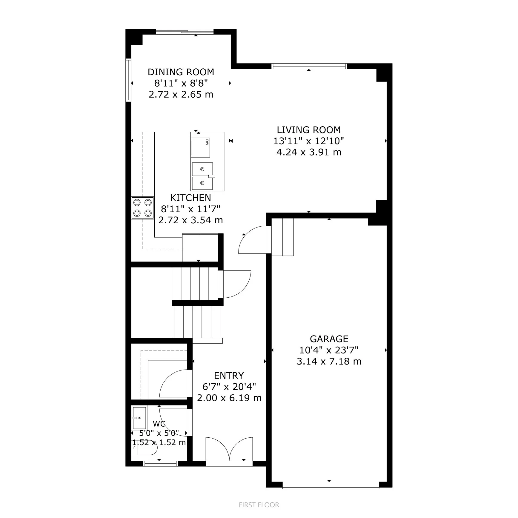
Floor Plans

Location